dr horton hayden floor plan georgia

Dr horton hayden floor plan georgia. Located in the north central part of Georgia it is the states most populous county with an estimated 1 million inhabitants and residents of both Atlanta and Fulton County can enjoy any number of big city attractions and entertainment options.


New Homes In Glen At Cascading Palms Atlanta Ga D R Horton

Schools provided by DR Horton.

. The location in Marietta GA minutes from Powder Springs Road and the East-West Connector is convenient to parks local shopping and dining and Wellstar Cobb Hospital. Ways Station is a new community in Richmond Hill GA by DR. Youll work with the builder to discuss options and availability.

House located at 430 Huntleigh Shores Ln Dallas GA 30132 sold for 375000 on Jan 10 2022. See all the DR. Dr Horton Hayden Floor Plan Georgia - View floor plans pricing information property photos and much more.

Creekstone is a new community in hampton ga by dr. Red Oak ElementaryMiddle. Horton home floor plans houses under construction and move-in ready homes available in the Atlanta area.

Horton d r inc dhi 10k annual reports 10q sec filings last10k. Dr horton hayden floor plan georgia Monday April 4 2022 Edit. ROBIE Plan Glen at Kensington Lithia Springs GA 30122.

Avery By Dr Horton Floor Plan Friday Marr Team At Re Max Prestige. Monthly Payment SEE. 3061 Laura Ln Lithia Springs GA 30122.

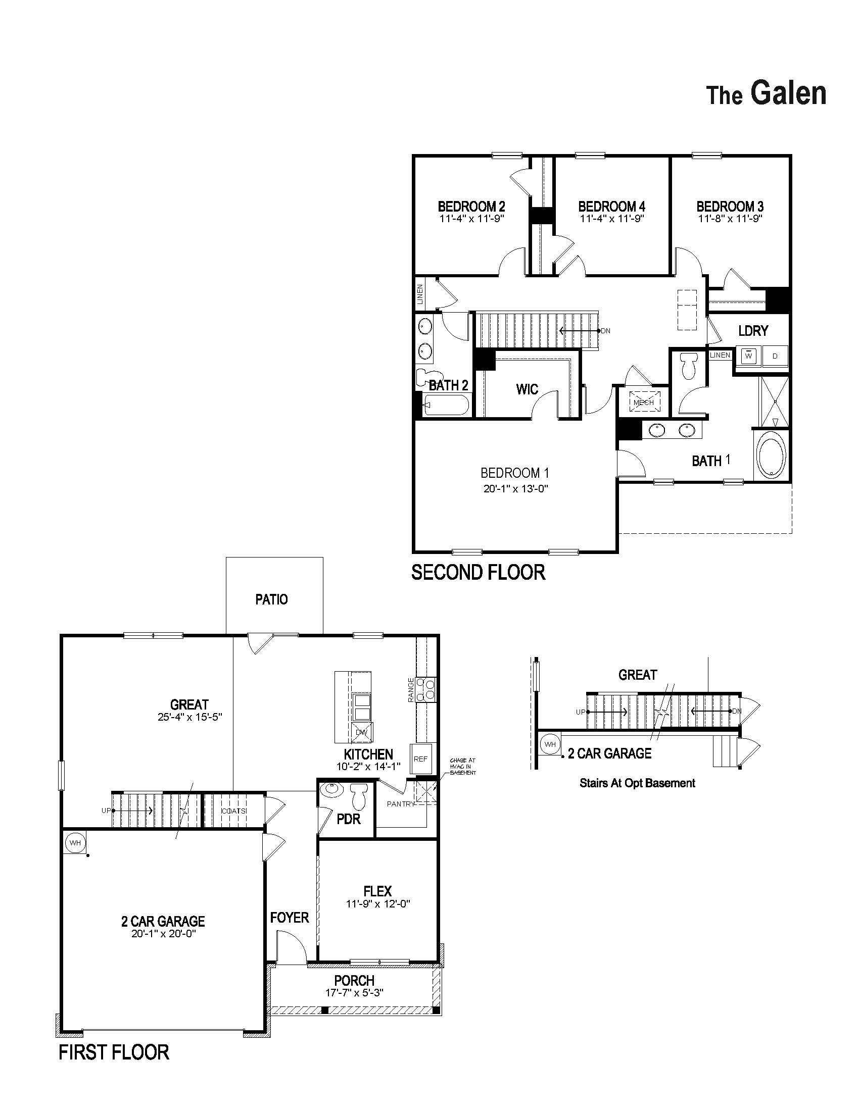
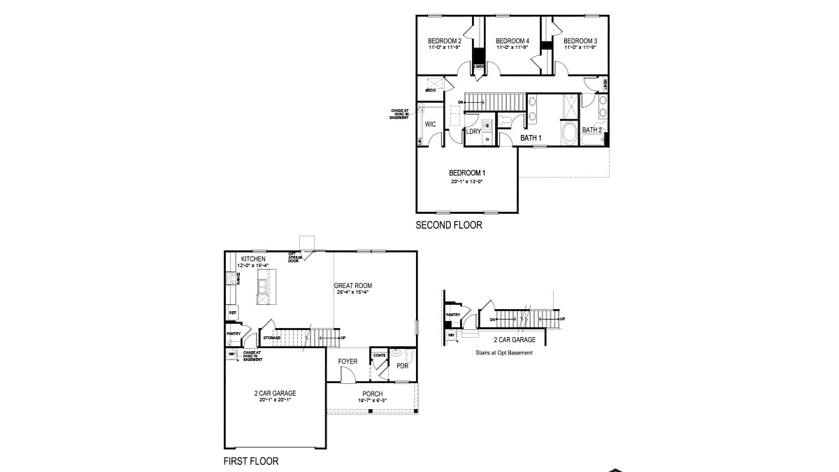
This buildable plan is a 4 bedroom 3 bathroom 2567 sqft single-family home and was listed by DR Horton on Mar 18 2022. If convenience is a top priority while still maintaining separation from the big-city hustle and bustle this Paulding County community with single-family homes ranging from 1770 - 3200 square. 5 BR 3 BA 2 Car Garage flex space bedroom with.

5 bedroom 3 bath 2 car garage 2601. Hayden Add to Favorites. This plan offers a flex space that could be.

Home is a 5 bed 30 bath property. 5 bd 2 ba 21k sqft. Residents will also enjoy easy access to.

Horton - Hilton Head-Savannah. Hayden Plan is a buildable plan in Ways Station. Our livable floor plans energy efficient.

Hayden Summerwind Dacula GA 30019. 13K views 9 likes 6 loves 8 comments 8 shares Facebook Watch Videos from DR. HttpsbitlyCS_Hayden_Video We invite you to take a video tour of our popular Hayden plan.

Our livable floor plans energy efficient features and robust new home warranty demonstrate our commitment to excellence in construction. This is a floor plan that can be built within this community. Horton has consistently delivered top-quality new homes to homebuyers across the nation.

100 Ilo Cir B1WXA6 Perry GA 31069 is a single-family home listed for-sale at 301400. Horton is Americas largest new home builder by volume. 113 ECHO COURT HOSCHTON GA 30548 2511 sq.

Schools provided by DR Horton. HAYDEN Add to Favorites. Ad Search By Architectural Style Square Footage Home Features Countless Other Criteria.

HttpbitlyLGS_Elmstone_Hayden This is currently our most. Take a look at the Hayden one of my favorite DR Horton floor-plans. House located at 430 Huntleigh Shores Ln Dallas GA 30132 sold for 375000 on Jan 10 2022.

See all the DR. Horton offers new single-family homes in this area - all constructed with our spacious open-concept floor plans. Find a new home in Pendergrass GA.

427 WALNUT GROVE WAY PENDERGRASS GA 30567 369990 2511 sq. Find a new home in Hoschton GA. 5 bd 3 ba 23k sqft.

Perry is known as the home of the annual Georgia National Fair held each year in October. Youll work with the builder to discuss options and availability. Hayden Broder Farm Stockbridge GA 30281.

Dr horton floor plans augusta ga. Horton home floor plans houses under construction and move-in ready homes available in the Atlanta area. Concrete block construction on both floors.

Hortons new homes for sale in atlanta ga filled with amenities in a variety of comfortable floor plans. Request a tour Contact an agent. This buildable plan is a 4 bedroom 4 bathroom 2920 sqft single-family home and was listed by DR Horton on Feb.

Hayden Summerwind Dacula GA 30019. Were excited for the opportunity to serve as your new home builder right here in Perry. Hortons new homes for sale in atlanta ga filled with amenities in a variety of comfortable floor plans and designs.

Home is a 5 bed 30 bath property. HttpbitlyLGS_Elmstone_Hayden This is currently our most. The foyer gives this plan an open and spacious feel from the moment you enter your home.

The asking price for Hayden Plan is 382990. Visit the Broder Farm website. Viewfloor 7 years ago No Comments.

This buildable plan is a 4 bedroom 4 bathroom 2920 sqft single-family home and was listed by DR Horton on Feb. This is a floor plan that can be built within this community. 2006 Dr Horton Floor Plans.

We Have Helped Over 114000 Customers Find Their Dream Home. LGBT Local Legal Protections. Dr Horton Hayden Floor Plan Georgia - Horton homes vary based on the location floor plan size and style of the home selected.

27 Georgia Real Estate - For Sale Ideas In 2021 Real Estate Georgia Estate Sale. DR Horton Home Team email protected 404-276-4288 Martidus Tyus 210077 email protected. Tucked away in a quiet residential area Tennessee Glen is a highly sought-after enclave of 24 single-family homes in Cobb County.

Dr horton hayden floor plan georgia. New Construction Homes in Perry Georgia. Discover Dr Horton Hayden Plan for getting more useful information about real estate apartment.

New Homes In Longleaf Mcdonough Ga D R Horton New Homes In Westwood League City Tx D R Horton D R Horton Cali. Dr horton hayden floor plan georgia. Our livable floor plans energy efficient features and robust new home warranty demonstrate our commitment to excellence in construction.

Horton d r inc dhi 10k annual reports 10q sec filings last10k. This buildable plan is a 5 bedroom 3 bathroom 2511 sqft single-family home and was listed by DR Horton on Jun 26 2022. The asking price for Hayden Plan is 353990.

MLS ID 7064545 Jessica Johnson 678-760-8709. Gwinnett County Public Schools.


New Homes In Creekstone Hampton Ga Express Homes By D R Horton


New Homes In Glen At Cascading Palms Atlanta Ga D R Horton


New Homes In Glen At Cascading Palms Atlanta Ga D R Horton


Homes For Sale In Loganville Ga Swim Tennis Community Open House Weekend Home Open House


New Homes In Twin Lakes Hoschton Ga D R Horton


New Homes In Etowah Preserve Dawsonville Ga D R Horton


Sugar Hill Ga New Single Family Homes Rivendale Crossing Home Home Builders Family Room


New Homes In Walnut Grove Pendergrass Ga Express


New Homes In Palisades Dallas Ga D R Horton


New Homes In Aurora Creek Dallas Ga Express


New Homes In British Mills Douglasville Ga D R Horton


Elegant And Everlasting Homes Affinity Building Systems Modular Homes Custom Modular Homes Building Systems


New Homes In Glen At Kensington Lithia Springs Ga D R Horton


Greystone Manor In Mcdonough Ga Prices Plans Availability


New Homes In Locust Grove Elmstone Ph Ii Locust Grove Ga D R Horton


Pin On Georgia Real Estate For Sale


New Homes Clermont Winter Garden 55 Pallazio By Taylor Morrison Highlan Taylor Morrison Clermont Taylor Morrison Homes


New Homes In Etowah Preserve Dawsonville Ga D R Horton


New Video Tuesday In This Video We Tour The Hayden Floor Plan On The Magnolia Side Of Brushy Fork In Loganville We New Construction Magnolia How To Plan

Iklan Atas Artikel

Iklan Tengah Artikel 1